Vintimille, penthouse avec vue mer
Reference: 13943
Prix réduit
Vintimille, nous proposons à la vente un magnifique penthouse avec une grande terrasse d'environ 100 mètres carrés qui offre une vue mer enchanteresse, à quelques pas des plages, de la promenade et de la piste cyclable.
Cette propriété peut être considérée comme une opportunité unique, située dans l'un des quartiers résidentiels les plus exclusifs et privilégiés, impliqué dans de grands projets de régénération urbaine.
Les espaces intérieurs laissent une large place à la personnalisation et la magnifique terrasse offre une vue mer incomparable de l'aube au crépuscule, un espace idéal pour profiter de moments conviviaux en plein air ou se détendre au soleil.
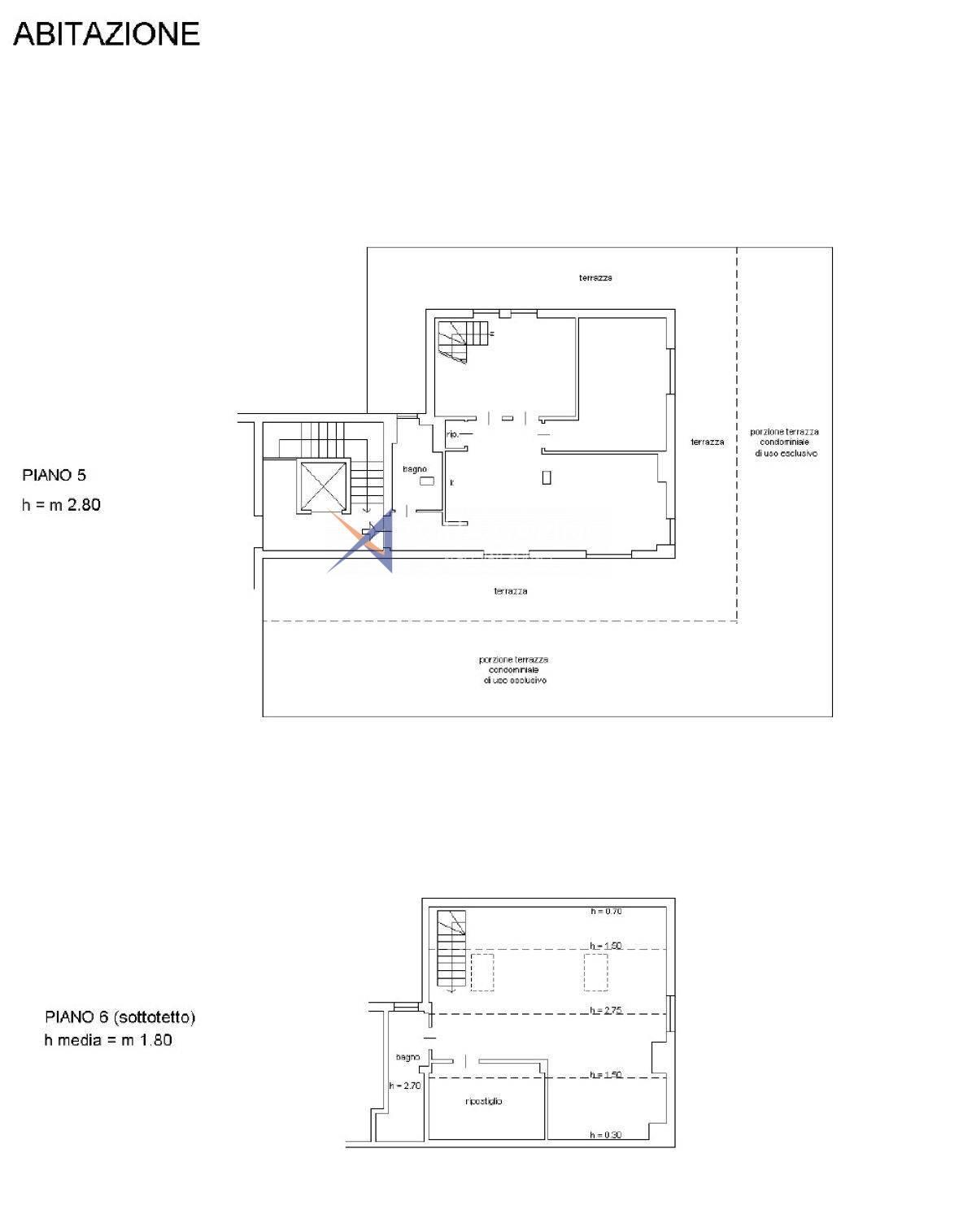
L'appartement est sur deux niveaux, aux cinquième et sixième étages facilement accessibles par ascenseur et se compose actuellement comme suit : entrée menant au séjour très lumineux avec cuisine ouverte, salle de bain avec douche, deux chambres, placard, grande terrasse périphérique et escalier menant à l'étage supérieur où nous sommes accueillis par une seule pièce mansardée "open space", un autre placard et une salle de bain vitrée avec baignoire.
La propriété est complétée par une cave et un garage simple pratique.
Le chauffage est autonome et les charges de copropriété sont très faibles.
Une solution de logement idéale pour les familles, pour passer des vacances inoubliables ou pour ceux qui souhaitent avoir des chambres dédiées aux invités ou aux études.
Vintimille, nous proposons à la vente un magnifique penthouse avec une grande terrasse d'environ 100 mètres carrés qui offre une vue mer enchanteresse, à quelques pas des plages, de la promenade et de la piste cyclable.
Cette propriété peut être considérée comme une opportunité unique, située dans l'un des quartiers résidentiels les plus exclusifs et privilégiés, impliqué dans de grands projets de régénération urbaine.
Les espaces intérieurs laissent une large place à la personnalisation et la magnifique terrasse offre une vue mer incomparable de l'aube au crépuscule, un espace idéal pour profiter de moments conviviaux en plein air ou se détendre au soleil.
L'appartement est sur deux niveaux, aux cinquième et sixième étages facilement accessibles par ascenseur et se compose actuellement comme suit : entrée menant au séjour très lumineux avec cuisine ouverte, salle de bain avec douche, deux chambres, placard, grande terrasse périphérique et escalier menant à l'étage supérieur où nous sommes accueillis par une seule pièce mansardée "open space", un autre placard et une salle de bain vitrée avec baignoire.
La propriété est complétée par une cave et un garage simple pratique.
Le chauffage est autonome et les charges de copropriété sont très faibles.
Une solution de logement idéale pour les familles, pour passer des vacances inoubliables ou pour ceux qui souhaitent avoir des chambres dédiées aux invités ou aux études.
- Référence: 13943
- Prix: € 480.000
- Vue mer
- Chauffage: autonome
- Surface: m² 107
- Pièces: 3
- Des locaux: 6
- Sol: Sur deux niveaux
- Nombre total d'étages: 6
- Exposition: SUD/EST/OUEST
- Charges de copropriété: 95 €/mois
- Chambres: 3
- Mètres carrés: 107
- Salles de bain: 2
€ 480.000
Aquamarina Real Estate Agency
via Vittorio Emanuele, 30218012 Bordighera (IM)
Telephone: +39 0184 26.16.87
Portable: +39 328 83.65.167
E-mail: info@aquamarina.email APPELER DEMANDER RENDEZ-VOUS



