Sanremo, appartement avec jardin
Reference: 13901
Sanremo, Via Duca degli Abruzzi, l'un des quartiers les plus calmes et résidentiels de la ville, proche de la mer et des principaux services, nous proposons à la vente un appartement raffiné avec un grand jardin privé.
Située dans un élégant bâtiment entouré d'un grand espace clôturé, la propriété offre intimité, sécurité et tranquillité, assurant un environnement idéal pour ceux qui veulent vivre à la campagne sans renoncer à la proximité du centre.
L'appartement, de 180 mètres carrés au rez-de-chaussée, dispose d'un jardin privé de 250 mètres carrés, soigné dans les moindres détails avec gazebo, éclairage nocturne, sol en pierre et arrosage automatique.
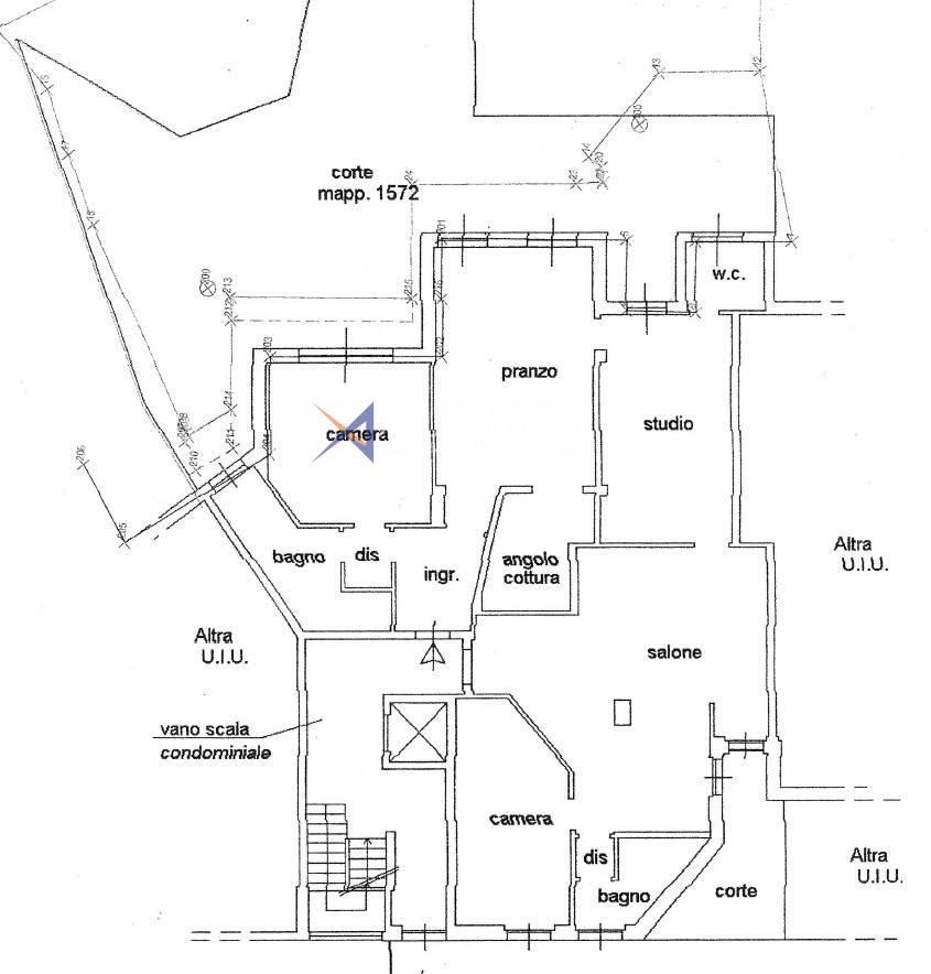
Elle est composée de deux logements communicants, chacun disposant d'une entrée indépendante.
La première unité, d'une superficie de 115 m2, comprend un lumineux séjour ouvert avec salle à manger et cuisine américaine, deux chambres doubles bien éclairées, deux salles de bains avec fenêtres et un accès exclusif au jardin.
Le deuxième, un deux pièces de 65 m2, offre un grand séjour avec cuisine ouverte, une chambre double, une salle de bain avec fenêtre et une cour privée.
La propriété est en excellent état, partiellement meublée et équipée d'un système de chauffage indépendant au gaz méthane.
Elle dispose également de deux places de parking couvertes dans le garage et de deux caves.
Parfait comme résidence principale, solution bifamiliale ou investissement.
Il est également possible d'acheter uniquement le plus grand appartement pour le prix de 500 000 €.
Pour plus de détails, n'hésitez pas à nous contacter.
Sanremo, Via Duca degli Abruzzi, l'un des quartiers les plus calmes et résidentiels de la ville, proche de la mer et des principaux services, nous proposons à la vente un appartement raffiné avec un grand jardin privé.
Située dans un élégant bâtiment entouré d'un grand espace clôturé, la propriété offre intimité, sécurité et tranquillité, assurant un environnement idéal pour ceux qui veulent vivre à la campagne sans renoncer à la proximité du centre.
L'appartement, de 180 mètres carrés au rez-de-chaussée, dispose d'un jardin privé de 250 mètres carrés, soigné dans les moindres détails avec gazebo, éclairage nocturne, sol en pierre et arrosage automatique.
Elle est composée de deux logements communicants, chacun disposant d'une entrée indépendante.
La première unité, d'une superficie de 115 m2, comprend un lumineux séjour ouvert avec salle à manger et cuisine américaine, deux chambres doubles bien éclairées, deux salles de bains avec fenêtres et un accès exclusif au jardin.
Le deuxième, un deux pièces de 65 m2, offre un grand séjour avec cuisine ouverte, une chambre double, une salle de bain avec fenêtre et une cour privée.
La propriété est en excellent état, partiellement meublée et équipée d'un système de chauffage indépendant au gaz méthane.
Elle dispose également de deux places de parking couvertes dans le garage et de deux caves.
Parfait comme résidence principale, solution bifamiliale ou investissement.
Il est également possible d'acheter uniquement le plus grand appartement pour le prix de 500 000 €.
Pour plus de détails, n'hésitez pas à nous contacter.
- Référence: 13901
- Prix: € 750.000
- Chauffage: autonome
- Surface: m² 185
- Pièces: 3
- Des locaux: 5
- Distance de la mer: mètres 500
- Sol: Rez-de-chaussée
- Nombre total d'étages: 3
- Charges de copropriété: 160 €/mois
- Chambres: 3
- Mètres carrés: 185
- Salles de bain: 3
€ 750.000
Aquamarina Real Estate Agency
via Vittorio Emanuele, 30218012 Bordighera (IM)
Telephone: +39 0184 26.16.87
Portable: +39 328 83.65.167
E-mail: info@aquamarina.email APPELER DEMANDER RENDEZ-VOUS



