Piani Cipressa Appartement Quatre Pièces Vue Mer
Reference: 13894
Piani Cipressa, Appartement 4 Pièces avec Vue Mer à Vendre
Nous vous présentons un appartement exclusif à seulement 200 mètres de la mer et de la piste cyclable la plus célèbre de la Ligurie qui relie Imperia et Ospedaletti, à 800 mètres du centre de San Lorenzo al Mare, situé dans un cadre raffiné. Cet appartement de quatre pièces avec entrée indépendante est réparti sur deux niveaux :
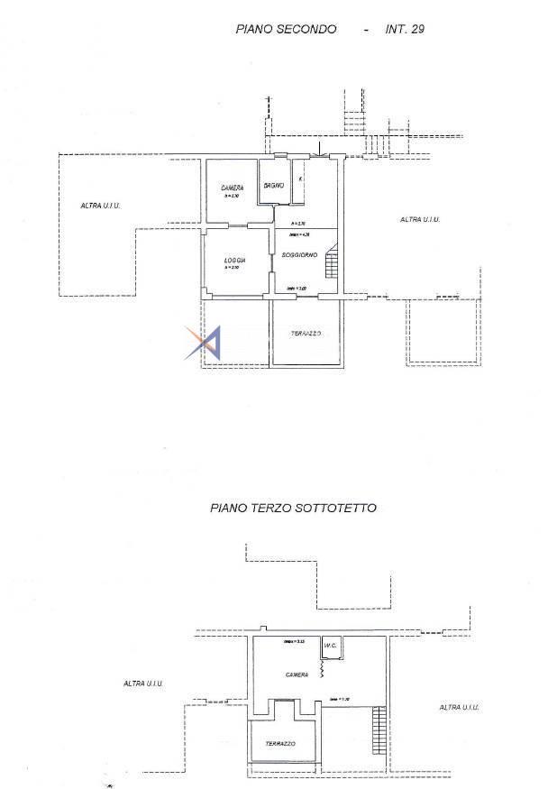
Deuxième étage : Entrée de vie accueillante qui s'ouvre sur un séjour lumineux et une cuisine bien équipée, une chambre, une salle de bain et deux terrasses. Les deux terrasses offrent une vue mer incroyable et sont adaptées aux moments de détente, dîners, déjeuners et petits déjeuners directement sur la mer, une terrasse est également équipée d'une loggia pour profiter de l'extérieur à tout moment.
Au troisième étage : Accessible par un escalier intérieur, nous trouvons une autre chambre avec terrasse vue mer, une deuxième salle de bain et un bureau.
De plus, l'appartement dispose de deux places de parking privées : une non couverte et une couverte.
Rénovée avec goût en 2018, elle présente des détails précieux, la propriété est équipée de finitions de haute qualité et d'accessoires modernes qui la rendent parfaite pour être vécue toute l'année. Le chauffage est autonome, avec pompes à chaleur, et il est vendu complet avec des meubles sur mesure.
Ne manquez pas l'opportunité de vivre dans ce bel appartement avec vue mer ! Contactez-nous pour plus d'informations ou pour organiser une visite.
Piani Cipressa, Appartement 4 Pièces avec Vue Mer à Vendre
Nous vous présentons un appartement exclusif à seulement 200 mètres de la mer et de la piste cyclable la plus célèbre de la Ligurie qui relie Imperia et Ospedaletti, à 800 mètres du centre de San Lorenzo al Mare, situé dans un cadre raffiné. Cet appartement de quatre pièces avec entrée indépendante est réparti sur deux niveaux :
Deuxième étage : Entrée de vie accueillante qui s'ouvre sur un séjour lumineux et une cuisine bien équipée, une chambre, une salle de bain et deux terrasses. Les deux terrasses offrent une vue mer incroyable et sont adaptées aux moments de détente, dîners, déjeuners et petits déjeuners directement sur la mer, une terrasse est également équipée d'une loggia pour profiter de l'extérieur à tout moment.
Au troisième étage : Accessible par un escalier intérieur, nous trouvons une autre chambre avec terrasse vue mer, une deuxième salle de bain et un bureau.
De plus, l'appartement dispose de deux places de parking privées : une non couverte et une couverte.
Rénovée avec goût en 2018, elle présente des détails précieux, la propriété est équipée de finitions de haute qualité et d'accessoires modernes qui la rendent parfaite pour être vécue toute l'année. Le chauffage est autonome, avec pompes à chaleur, et il est vendu complet avec des meubles sur mesure.
Ne manquez pas l'opportunité de vivre dans ce bel appartement avec vue mer ! Contactez-nous pour plus d'informations ou pour organiser une visite.
- Référence: 13894
- Prix: € 320.000
- Vue mer
- Chauffage: autonome
- Surface: m² 79
- Pièces: 2
- Des locaux: 4
- Distance de la mer: mètres 200
- Sol: Sur deux niveaux
- Nombre total d'étages: 3
- Exposition: Nord-Est / Sud-Est
- Localité: Piani
- Charges de copropriété: 98 €/mois
- Chambres: 2
- Mètres carrés: 79
- Salles de bain: 2
VENDU
Aquamarina Real Estate Agency
via Vittorio Emanuele, 30218012 Bordighera (IM)
Telephone: +39 0184 26.16.87
Portable: +39 328 83.65.167
E-mail: info@aquamarina.email APPELER DEMANDER RENDEZ-VOUS



