Ospedaletti, appartement en bord de mer
Reference: 13981
Prix réduit
Ospedaletti, proche des services et du centre, nous proposons à la vente un grand appartement face à la mer.
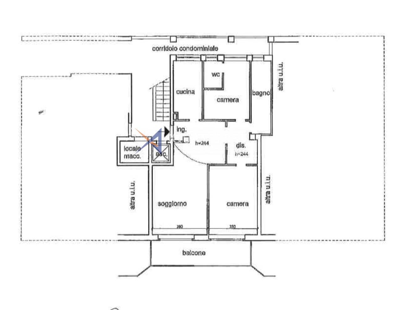
Le logement, très lumineux grâce à son exposition favorable, est en excellent état et meublé avec goût et se compose comme suit : hall d'entrée, grand séjour avec accès à la magnifique terrasse front de mer, cuisine dînatoire, coin nuit avec deux chambres doubles et deux salles de bains.
L'appartement dispose également d'un joli jardin privé idéal pour passer des moments de détente en plein air et profiter de la magnifique vue sur la mer.
Pour compléter le confort de cette splendide propriété : climatisation dans toutes les pièces, fenêtres à double vitrage, place de parking privée. Conciergerie.
Accès direct à la piscine de la copropriété, à la piste cyclable et aux plages
Ospedaletti, proche des services et du centre, nous proposons à la vente un grand appartement face à la mer.
Le logement, très lumineux grâce à son exposition favorable, est en excellent état et meublé avec goût et se compose comme suit : hall d'entrée, grand séjour avec accès à la magnifique terrasse front de mer, cuisine dînatoire, coin nuit avec deux chambres doubles et deux salles de bains.
L'appartement dispose également d'un joli jardin privé idéal pour passer des moments de détente en plein air et profiter de la magnifique vue sur la mer.
Pour compléter le confort de cette splendide propriété : climatisation dans toutes les pièces, fenêtres à double vitrage, place de parking privée. Conciergerie.
Accès direct à la piscine de la copropriété, à la piste cyclable et aux plages
- Référence: 13981
- Prix: € 420.000
- Chauffage: compteur horaire
- Surface: m² 95
- Pièces: 2
- Des locaux: 3
- Distance de la mer: mètres 50
- Sol: Rez-de-chaussée
- Charges de copropriété: 200 €/mois
- Chambres: 2
- Mètres carrés: 95
- Salles de bain: 2
€ 420.000
Aquamarina Real Estate Agency
via Vittorio Emanuele, 30218012 Bordighera (IM)
Telephone: +39 0184 26.16.87
Portable: +39 328 83.65.167
E-mail: info@aquamarina.email APPELER DEMANDER RENDEZ-VOUS



