Imperia, appartement en centre-ville
Reference: 14105
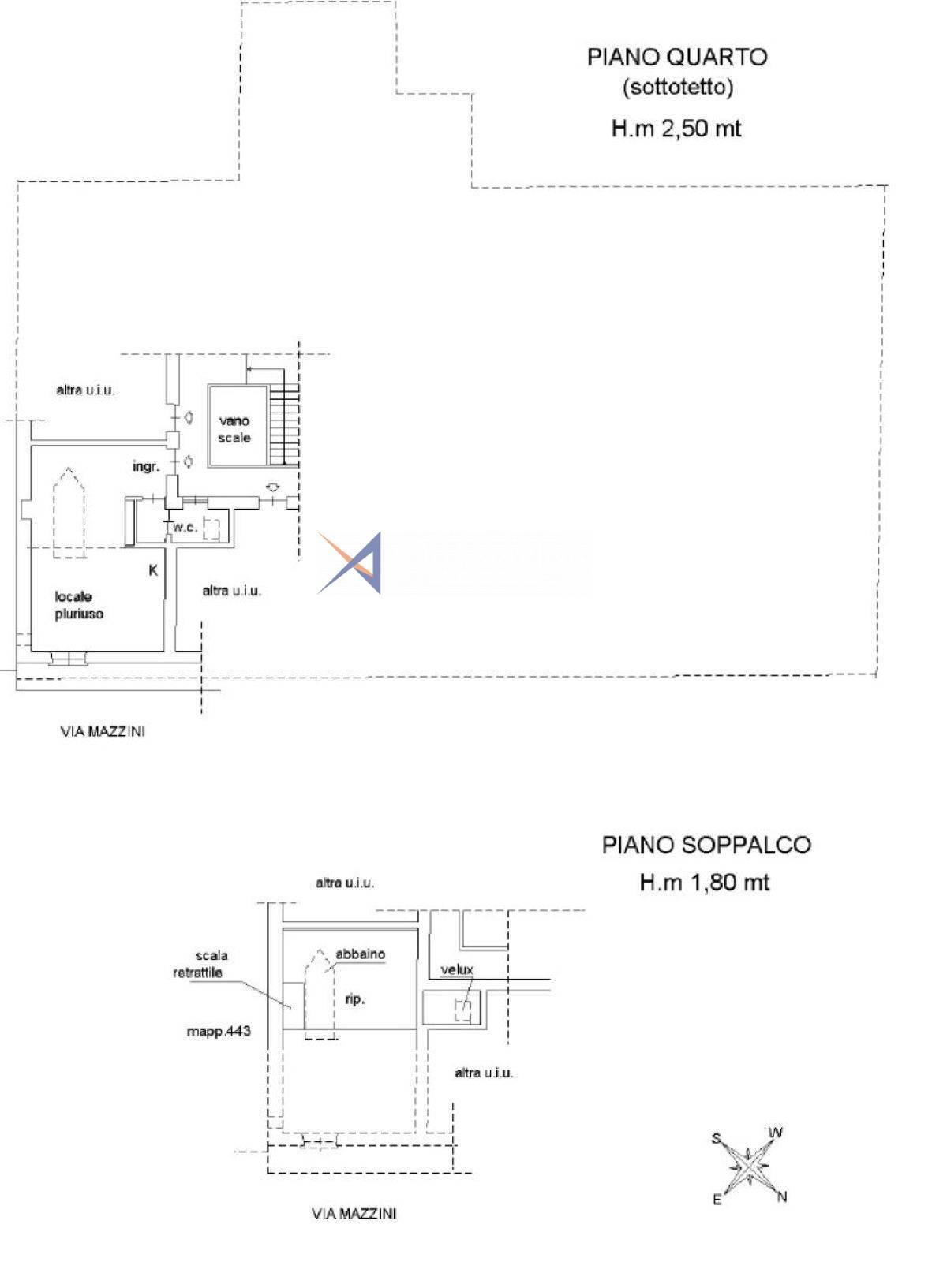
Imperia, appartement en plein centre. Dans le charmant village de Porto Maurizio, idéalement situé à proximité des plages et des commerces du centre historique, nous vous proposons à la vente un appartement au quatrième étage (avec ascenseur) d'une petite copropriété aux faibles charges. L'appartement se trouve à deux pas de la célèbre piste cyclable longeant la mer et desservant différents quartiers, ainsi que des principaux services de la ville tels que supermarchés, écoles et transports en commun. De type loft, avec de hauts plafonds, cet appartement comprend un hall d'entrée avec un vaste séjour, une cuisine ouverte, une salle de bains, une mezzanine avec coin nuit et une cave. Il est idéal pour ceux qui recherchent un espace fonctionnel sans sacrifier la surface habitable. Le chauffage est individuel, avec une chaudière pour le chauffage et l'eau chaude sanitaire, garantissant confort et une excellente gestion énergétique. Grâce à son emplacement, ses faibles charges et ses espaces bien agencés, ce bien convient aussi bien comme résidence principale que secondaire, ou comme investissement pour ceux qui souhaitent vivre à quelques pas de la mer sans renoncer aux commodités.
Imperia, appartement en plein centre. Dans le charmant village de Porto Maurizio, idéalement situé à proximité des plages et des commerces du centre historique, nous vous proposons à la vente un appartement au quatrième étage (avec ascenseur) d'une petite copropriété aux faibles charges. L'appartement se trouve à deux pas de la célèbre piste cyclable longeant la mer et desservant différents quartiers, ainsi que des principaux services de la ville tels que supermarchés, écoles et transports en commun. De type loft, avec de hauts plafonds, cet appartement comprend un hall d'entrée avec un vaste séjour, une cuisine ouverte, une salle de bains, une mezzanine avec coin nuit et une cave. Il est idéal pour ceux qui recherchent un espace fonctionnel sans sacrifier la surface habitable. Le chauffage est individuel, avec une chaudière pour le chauffage et l'eau chaude sanitaire, garantissant confort et une excellente gestion énergétique. Grâce à son emplacement, ses faibles charges et ses espaces bien agencés, ce bien convient aussi bien comme résidence principale que secondaire, ou comme investissement pour ceux qui souhaitent vivre à quelques pas de la mer sans renoncer aux commodités.
- Chambres: 1
- Mètres carrés: 60
- Salles de bain: 1
€ 87.000
Aquamarina Real Estate Agency
via Vittorio Emanuele, 30218012 Bordighera (IM)
Telephone: +39 0184 26.16.87
Portable: +39 328 83.65.167
E-mail: info@aquamarina.email APPELER DEMANDER RENDEZ-VOUS

