Bussana, appartement nouvelle construction
Reference: 13849
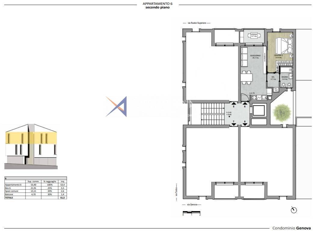
Sanremo, dans le quartier calme et caractéristique de Bussana, appartement de deux pièces à vendre situé au premier étage d'un immeuble nouvellement construit, dans un contexte résidentiel moderne et calme.
L'appartement est divisé comme suit : séjour lumineux avec accès direct à la loggia, idéal pour profiter des belles journées en plein air, chambre double et salle de bain avec cabine de douche. Conçu en classe énergétique A+, il offre une combinaison parfaite de design, d'innovation et de sécurité, avec une structure conforme aux réglementations antisismiques les plus modernes. Le chauffage est autonome au sol, alimenté par une pompe à chaleur hydronique, pour garantir un confort maximal en toute saison.
Les espaces intérieurs sont personnalisables : revêtements de sol et revêtements peuvent être choisis directement par l'acheteur, parmi une vaste sélection d'échantillons disponibles sur place, pour créer l'environnement qui vous convient.
De plus, la propriété dispose d'une loggia privée idéale pour des moments de détente en plein air, tandis que le garage correspondant offre un espace confortable pour votre véhicule.
Le bâtiment est équipé de fenêtres et de portes en PVC rigide antichoc, avec renfort interne en acier et d'un système d'isolation SCHUCO AS 82 à 7 chambres, pour une excellente protection thermique et acoustique.
La copropriété "Genova" est également enrichie d'un système photovoltaïque, qui assure l'indépendance énergétique des espaces communs, y compris l'ascenseur, réduisant ainsi la consommation d'énergie et les coûts au minimum.
Une opportunité unique de vivre dans un environnement moderne, sûr et efficace, à quelques pas de la mer et des services de proximité.
Contactez-nous pour plus d'informations ou pour organiser une visite!
Sanremo, dans le quartier calme et caractéristique de Bussana, appartement de deux pièces à vendre situé au premier étage d'un immeuble nouvellement construit, dans un contexte résidentiel moderne et calme.
L'appartement est divisé comme suit : séjour lumineux avec accès direct à la loggia, idéal pour profiter des belles journées en plein air, chambre double et salle de bain avec cabine de douche. Conçu en classe énergétique A+, il offre une combinaison parfaite de design, d'innovation et de sécurité, avec une structure conforme aux réglementations antisismiques les plus modernes. Le chauffage est autonome au sol, alimenté par une pompe à chaleur hydronique, pour garantir un confort maximal en toute saison.
Les espaces intérieurs sont personnalisables : revêtements de sol et revêtements peuvent être choisis directement par l'acheteur, parmi une vaste sélection d'échantillons disponibles sur place, pour créer l'environnement qui vous convient.
De plus, la propriété dispose d'une loggia privée idéale pour des moments de détente en plein air, tandis que le garage correspondant offre un espace confortable pour votre véhicule.
Le bâtiment est équipé de fenêtres et de portes en PVC rigide antichoc, avec renfort interne en acier et d'un système d'isolation SCHUCO AS 82 à 7 chambres, pour une excellente protection thermique et acoustique.
La copropriété "Genova" est également enrichie d'un système photovoltaïque, qui assure l'indépendance énergétique des espaces communs, y compris l'ascenseur, réduisant ainsi la consommation d'énergie et les coûts au minimum.
Une opportunité unique de vivre dans un environnement moderne, sûr et efficace, à quelques pas de la mer et des services de proximité.
Contactez-nous pour plus d'informations ou pour organiser une visite!
- Référence: 13849
- Prix: € 273.000
- Chauffage: autonome
- Surface: m² 53
- Pièces: 1
- Des locaux: 2
- Distance de la mer: mètres 150
- Sol: Rez-de-chaussée
- Nombre total d'étages: 2
- Localité: Bussana
- Chambres: 1
- Mètres carrés: 53
- Salles de bain: 1
€ 273.000
Aquamarina Real Estate Agency
via Vittorio Emanuele, 30218012 Bordighera (IM)
Telephone: +39 0184 26.16.87
Portable: +39 328 83.65.167
E-mail: info@aquamarina.email APPELER DEMANDER RENDEZ-VOUS



