Appartement en bord de mer à Sanremo
Reference: 14046
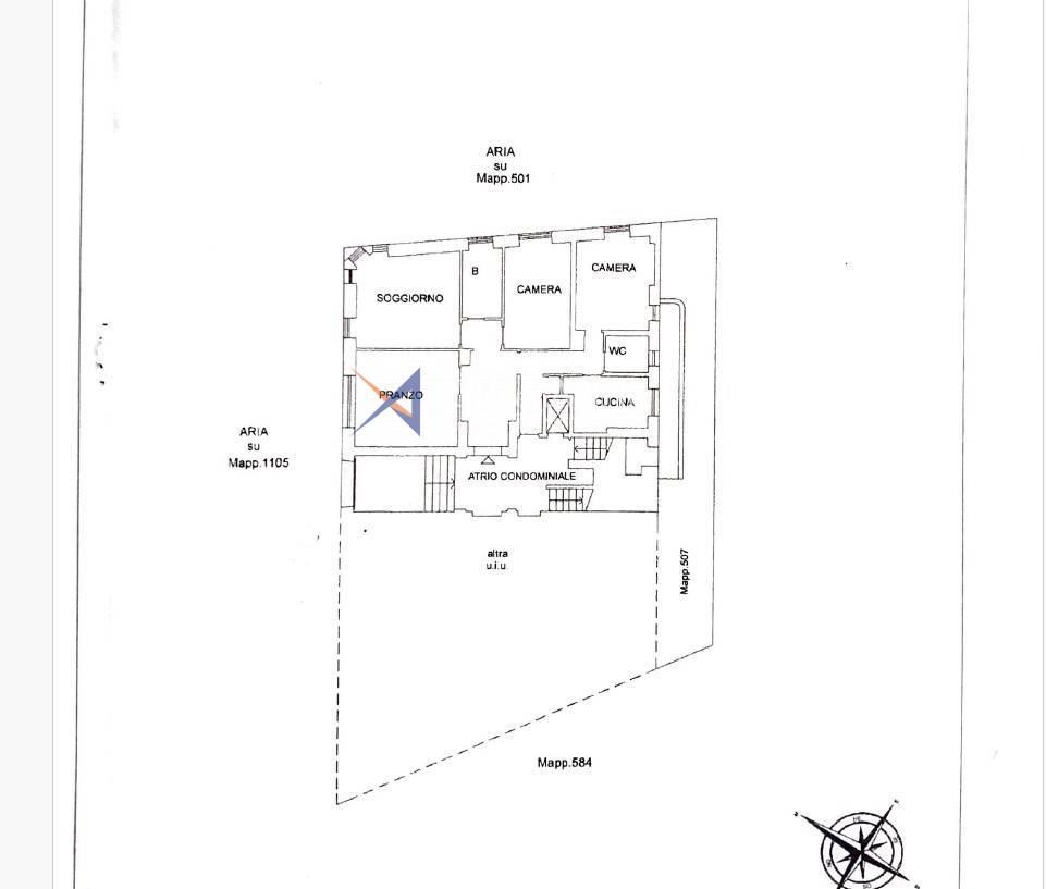
Sanremo : Appartement face à la mer et à la piste cyclable. Nous vendons un prestigieux appartement rénové sur le Corso Orazio Raimondo, avec vue sur la mer, la piste cyclable et Porto Sole. Nous sommes situés dans l'un des quartiers les plus prestigieux de Sanremo, en plein centre-ville, à proximité de toutes les commodités, éliminant ainsi les transports en commun. L'appartement est situé dans un immeuble majestueux, élégant et prestigieux, équipé d'un interphone vidéo, d'un portail électrique et d'un parking commun fermé par une barrière. La rénovation de la façade vient d'être terminée. L'appartement, situé en mezzanine, dispose de deux entrées, permettant de le transformer en deux appartements. Les matériaux intérieurs sont de haute qualité, avec du marbre et du parquet, et les fenêtres extérieures sont en aluminium à double vitrage. L'entrée s'ouvre sur un grand couloir, un séjour avec portes-fenêtres, un autre grand séjour avec bow-windows, une salle de bains avec fenêtre et baignoire, et une chambre. En continuant, nous trouvons un autre couloir comprenant un grand placard double, une grande chambre avec accès au balcon extérieur, une salle de bains avec fenêtre et douche, une cuisine dînatoire avec portes-fenêtres donnant sur le balcon de la cour intérieure, et une buanderie sur le balcon, aménageable en troisième salle de bains. L'appartement est exposé plein sud et bénéficie d'une abondante lumière naturelle et d'une vue sur la mer. Il est équipé du chauffage indépendant par radiateurs et de la climatisation pour l'été. Une cave et une place de parking (vendues séparément) sont également disponibles sur demande.
Sanremo : Appartement face à la mer et à la piste cyclable. Nous vendons un prestigieux appartement rénové sur le Corso Orazio Raimondo, avec vue sur la mer, la piste cyclable et Porto Sole. Nous sommes situés dans l'un des quartiers les plus prestigieux de Sanremo, en plein centre-ville, à proximité de toutes les commodités, éliminant ainsi les transports en commun. L'appartement est situé dans un immeuble majestueux, élégant et prestigieux, équipé d'un interphone vidéo, d'un portail électrique et d'un parking commun fermé par une barrière. La rénovation de la façade vient d'être terminée. L'appartement, situé en mezzanine, dispose de deux entrées, permettant de le transformer en deux appartements. Les matériaux intérieurs sont de haute qualité, avec du marbre et du parquet, et les fenêtres extérieures sont en aluminium à double vitrage. L'entrée s'ouvre sur un grand couloir, un séjour avec portes-fenêtres, un autre grand séjour avec bow-windows, une salle de bains avec fenêtre et baignoire, et une chambre. En continuant, nous trouvons un autre couloir comprenant un grand placard double, une grande chambre avec accès au balcon extérieur, une salle de bains avec fenêtre et douche, une cuisine dînatoire avec portes-fenêtres donnant sur le balcon de la cour intérieure, et une buanderie sur le balcon, aménageable en troisième salle de bains. L'appartement est exposé plein sud et bénéficie d'une abondante lumière naturelle et d'une vue sur la mer. Il est équipé du chauffage indépendant par radiateurs et de la climatisation pour l'été. Une cave et une place de parking (vendues séparément) sont également disponibles sur demande.
- Chambres: 3
- Mètres carrés: 152
- Salles de bain: 3
€ 720.000
Aquamarina Real Estate Agency
via Vittorio Emanuele, 30218012 Bordighera (IM)
Telephone: +39 0184 26.16.87
Portable: +39 328 83.65.167
E-mail: info@aquamarina.email APPELER DEMANDER RENDEZ-VOUS



