Sanremo, villa avec vue sur la mer
Reference: 13788
Prix réduit
Sanremo, dans un cadre calme à quelques kilomètres du centre et des plages, nous vous proposons à la vente une charmante villa avec vue dégagée sur la mer.
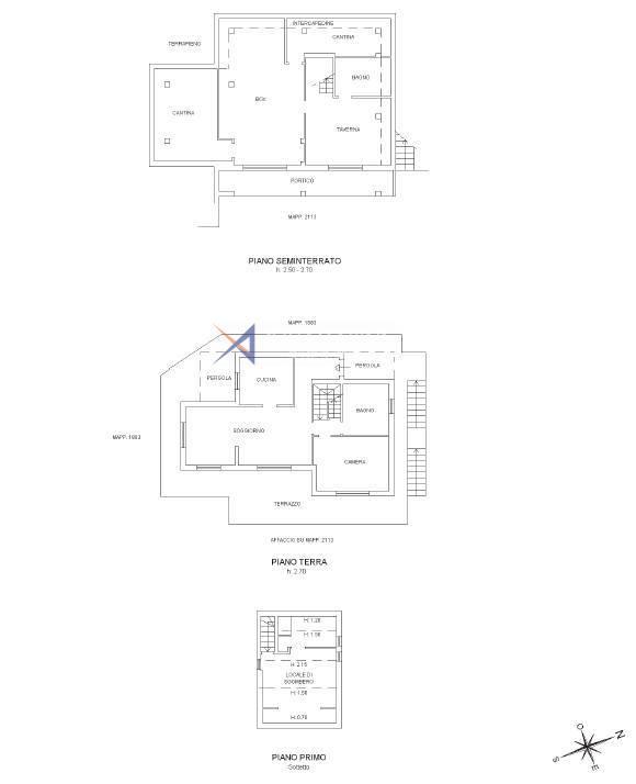
La villa, datant du début des années 90, est en bon état avec quelques travaux d'entretien nécessaires, est répartie sur trois niveaux pour un total de 200m2 entre maison et entrepôt et est divisée comme suit :
au rez-de-chaussée : grand entrepôt transformable en habitation, salle de bains, cave et débarras reliés à l'appartement principal par un escalier intérieur, porche et grande cour ;
au premier étage : grand séjour avec cheminée, cuisine, grande chambre double et terrasse avec vue dégagée ;
à l'étage mansardé : grande chambre et salle de bains.
La propriété comprend : un terrain, en partie oliveraie, d'environ 3000m2, un grand entrepôt séparé de la propriété de 38m2 et de nombreuses places de parking non couvertes.
Sanremo, dans un cadre calme à quelques kilomètres du centre et des plages, nous vous proposons à la vente une charmante villa avec vue dégagée sur la mer.
La villa, datant du début des années 90, est en bon état avec quelques travaux d'entretien nécessaires, est répartie sur trois niveaux pour un total de 200m2 entre maison et entrepôt et est divisée comme suit :
au rez-de-chaussée : grand entrepôt transformable en habitation, salle de bains, cave et débarras reliés à l'appartement principal par un escalier intérieur, porche et grande cour ;
au premier étage : grand séjour avec cheminée, cuisine, grande chambre double et terrasse avec vue dégagée ;
à l'étage mansardé : grande chambre et salle de bains.
La propriété comprend : un terrain, en partie oliveraie, d'environ 3000m2, un grand entrepôt séparé de la propriété de 38m2 et de nombreuses places de parking non couvertes.
- Référence: 13788
- Prix: € 360.000 docile
- Vue mer
- Chauffage: autonome
- Surface: m² 200
- Pièces: 3
- Des locaux: 3
- Distance de la mer: mètres 4000
- Sol: Rez-de-chaussée
- Nombre total d'étages: 3
- Chambres: 3
- Mètres carrés: 200
- Salles de bain: 3
€ 360.000

18012 Bordighera (IM)
Telephone: +39 0184 26.16.87
Portable: +39 328 83.65.167
E-mail: info@aquamarina.email APPELER DEMANDER RENDEZ-VOUS