Sanremo, penthouse vue sur la mer
Reference: 13800
Sanremo, à quelques minutes du centre-ville et des plages, nous proposons à la vente un vaste penthouse avec une magnifique terrasse vue mer.
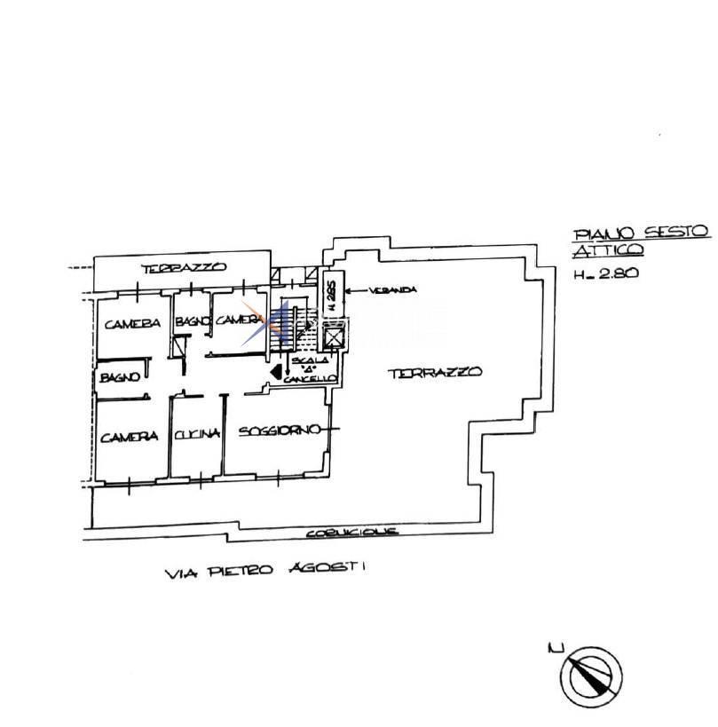
Le bien, proposé dans son état d'origine, est composé comme suit : entrée, couloir, cuisine habitable, séjour, trois chambres et deux salles de bains.
Le bien est complété par une grande terrasse d'environ 120 mètres carrés offrant une magnifique vue dégagée sur la mer, deux petits balcons, une cave et un grand garage.
Chauffage central avec vannes, convertible en chauffage autonome.
Sanremo, à quelques minutes du centre-ville et des plages, nous proposons à la vente un vaste penthouse avec une magnifique terrasse vue mer.
Le bien, proposé dans son état d'origine, est composé comme suit : entrée, couloir, cuisine habitable, séjour, trois chambres et deux salles de bains.
Le bien est complété par une grande terrasse d'environ 120 mètres carrés offrant une magnifique vue dégagée sur la mer, deux petits balcons, une cave et un grand garage.
Chauffage central avec vannes, convertible en chauffage autonome.
- Référence: 13800
- Prix: € 400.000
- Vue mer
- Chauffage: centralisé
- Surface: m² 105
- Pièces: 3
- Des locaux: 4
- Distance de la mer: mètres 1000
- Sol: Grenier
- Nombre total d'étages: 5
- Charges de copropriété: 210 €/mois
- Chambres: 3
- Mètres carrés: 105
- Salles de bain: 2
€ 400.000
Aquamarina Real Estate Agency
via Vittorio Emanuele, 30218012 Bordighera (IM)
Telephone: +39 0184 26.16.87
Portable: +39 328 83.65.167
E-mail: info@aquamarina.email APPELER DEMANDER RENDEZ-VOUS



