Maison indépendante avec jardin
Reference: 13926
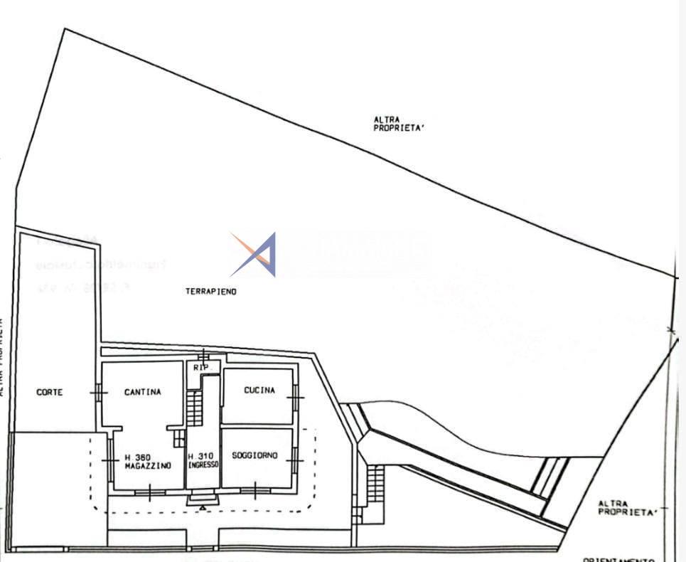
Au cœur du charmant village de Poggio, à seulement 3 km des plages enchanteresses et de la piste cyclable/piétonne pratique, nous présentons à la vente une villa indépendante de 166 m2 praticable à pied, libre sur quatre côtés, offrant intimité et luminosité dans chaque pièce.
L'entrée au rez-de-chaussée vous accueille avec un espace de vie spacieux, parfaitement éclairé, et une cuisine particulièrement fonctionnelle et aérée.
Un escalier intérieur confortable mène à la zone nuit, où se trouvent quatre chambres aux dimensions généreuses, toutes conçues pour assurer confort et intimité.
L'espace nuit est complété par une salle de bain avec fenêtre
Depuis l'étage supérieur, vous accédez à un balcon très habitable, un coin de tranquillité qui offre une vue dégagée sur le jardin privé et un aperçu enchanteur de la mer, un véritable privilège.
Au niveau supérieur, accessible par un escalier extérieur, se trouve une terrasse avec une vue panoramique et très suggestive, où vous pourrez profiter d'une tranquillité totale.
La propriété s'étend sur un terrain de 600 m2, enrichi d'arbres fruitiers, qui ajoutent une touche de beauté naturelle et de sérénité.
Pour compléter le bien, un grand garage et la possibilité de garer jusqu'à quatre véhicules dans la cour, facilement accessible via un portail, assurant confort et praticité au quotidien.
Une résidence qui allie espace et position privilégiée, parfaite pour ceux qui recherchent une retraite exclusive à quelques pas de la mer.
Au cœur du charmant village de Poggio, à seulement 3 km des plages enchanteresses et de la piste cyclable/piétonne pratique, nous présentons à la vente une villa indépendante de 166 m2 praticable à pied, libre sur quatre côtés, offrant intimité et luminosité dans chaque pièce.
L'entrée au rez-de-chaussée vous accueille avec un espace de vie spacieux, parfaitement éclairé, et une cuisine particulièrement fonctionnelle et aérée.
Un escalier intérieur confortable mène à la zone nuit, où se trouvent quatre chambres aux dimensions généreuses, toutes conçues pour assurer confort et intimité.
L'espace nuit est complété par une salle de bain avec fenêtre
Depuis l'étage supérieur, vous accédez à un balcon très habitable, un coin de tranquillité qui offre une vue dégagée sur le jardin privé et un aperçu enchanteur de la mer, un véritable privilège.
Au niveau supérieur, accessible par un escalier extérieur, se trouve une terrasse avec une vue panoramique et très suggestive, où vous pourrez profiter d'une tranquillité totale.
La propriété s'étend sur un terrain de 600 m2, enrichi d'arbres fruitiers, qui ajoutent une touche de beauté naturelle et de sérénité.
Pour compléter le bien, un grand garage et la possibilité de garer jusqu'à quatre véhicules dans la cour, facilement accessible via un portail, assurant confort et praticité au quotidien.
Une résidence qui allie espace et position privilégiée, parfaite pour ceux qui recherchent une retraite exclusive à quelques pas de la mer.
- Chambres: 4
- Mètres carrés: 190
- Salles de bain: 1
€ 390.000
Aquamarina Real Estate Agency
via Vittorio Emanuele, 30218012 Bordighera (IM)
Telephone: +39 0184 26.16.87
Portable: +39 328 83.65.167
E-mail: info@aquamarina.email APPELER DEMANDER RENDEZ-VOUS
